Résidence St-Jean

EXPÉRIENCE

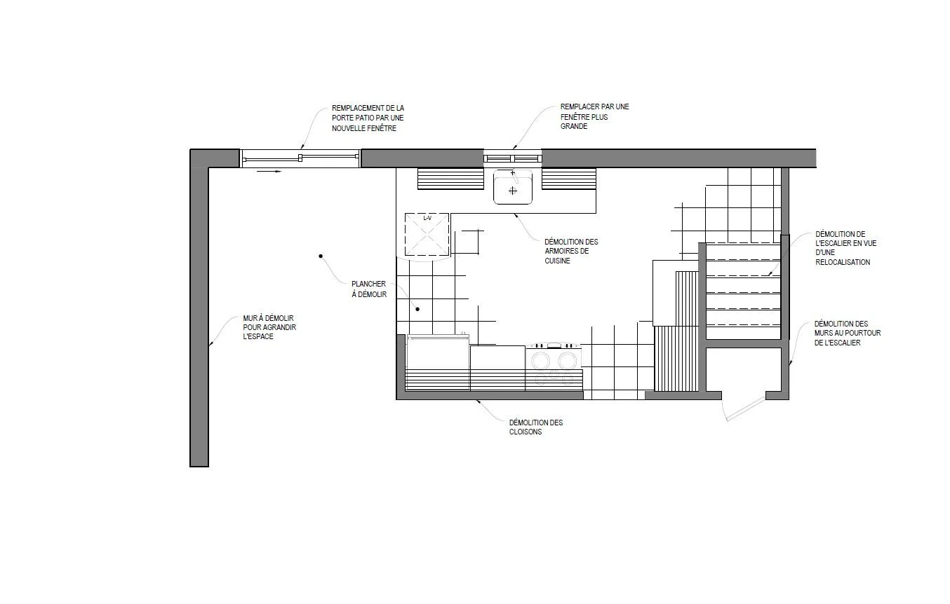
Dans ce projet, nous avions le mandat d'aménager une nouvelle configuration pour cette pièce, auparavant très petite. En relocalisant la salle à manger dans un autre endroit de la maison, cela nous à permis de créer un environnement lumineux, avec un îlot de 12'... Oui oui, 12' ! 

L'ambiance se veut moderne et lumineuse. Des matériaux de qualité et facile d'entretien sont mis de l'avant.

TYPe

Rénovation majeure


LIEU

Trois-Rivières


ANNÉE

2022


INVESTISSEMENT

$$


PHOTO

Sarah Dagenais


Notre démarche conceptuelle

Précédent
Précédent

Résidence D'oslo

Suivant
Suivant

Résidence Jean-Simon